3D溜溜网
  • 首页
  • 全部课程
    软件课程
    室内设计
    景观建筑
    平面设计
    工业产品
    视频制作
    • 3DMax
    • VRay
    • SketchUp
    • AutoCAD
    • Photoshop
    • Corona
    • 3DMax+VRay
    • Enscape
    • VRay for SketchUp
    • After Effects
    • Lumion
    • VRay 5.0
    • 更多>
    • 3D建模 HOT
    • 渲染表现 HOT
    • 灯光|材质|贴图
    • 动画漫游
    • CAD|施工图
    • 方案优化|谈单
    • 色彩软装|彩平图
    • 室内手绘
    • 工艺理论|风水
    • 展厅设计
    • 后期处理
    • 室内合集
    • 建筑|景观建模
    • 室外渲染表现
    • 建筑动画 HOT
    • 方案规划
    • 彩平图|分析图
    • PS零基础 HOT
    • 矢量绘图
    • 影视广告
    • 电商设计
    • UI设计
    • 海报设计
    • 摄影修图
    • 手绘
    • 产品设计
    • 模具设计
    • 产品渲染
    • 产品建模
    • 工业建模
    • 贵族教程 HOT
    • 免费课程
    • 视频剪辑 HOT
    • 摄影技巧
    • 短视频
    • 视频特效
    • CG动画
    • 三维建模
  • 系统课程
    3DMAX建模
    SketchUp
    CAD施工图
    VR渲染表现
    Corona渲染
    动画漫游
    软装 | 手绘
    草图大师sketchup+enscape完美设计渲染全流程

    草图大师sketchup+enscape完美设计渲染全流程

    讲师:长情

    4.96万人在学
    CR7.1-8.0商业写实渲染系统教程【B套餐】

    CR7.1-8.0商业写实渲染系统教程【B套餐】

    讲师:靠背视觉

    1.58万人在学
    SU室内外高效建模全流程系统课程

    SU室内外高效建模全流程系统课程

    讲师:靠背视觉

    1.35万人在学
    SketchUp2020+Enscape2.91-3.3建模渲染漫游动画

    SketchUp2020+Enscape2.91-3.3建模渲染漫游动画

    讲师:马世强

    1.63万人在学
    AutoCAD2020工装施工图及深化教程

    AutoCAD2020工装施工图及深化教程

    讲师:归燕老师

    5.05万人在学
  • 贵族免费专区
  • 3D素材库
  • 讲师合作 课程文章 问答专区 软件下载
自学贵族
消息
学习记录
登录
  • 系统课程
  • 课程小节
  • 课程文章38401
  • 课程问答
  • 全部
  • 室内设计
  • 建筑景观
  • 视频剪辑
  • 平面设计
  • 工业产品
  • 动画制作
  • 办公入门
  • 设计素材
  • 综合其它
  • <esred>如何</esred>将2010版<esred>CAD</esred><esred>图</esred>清晰的<esred>导入</esred><esred>Word</esred><esred>中</esred>?
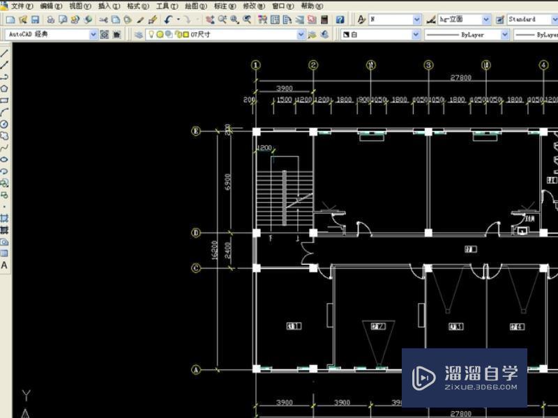
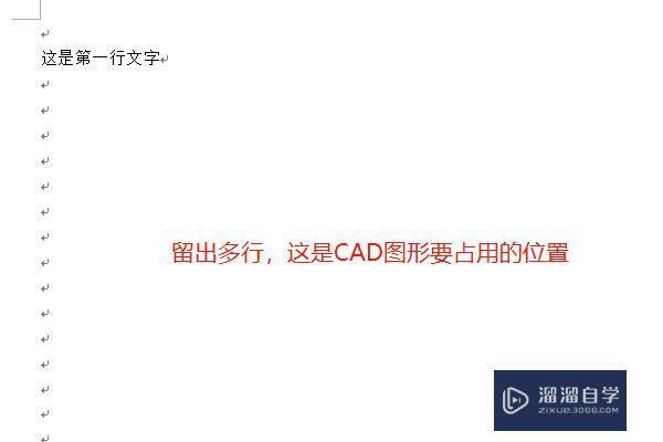
    如何将2010版CAD图清晰的导入Word中?

    浏览量:875 室内设计

    溜溜自学
  • <esred>如何</esred>将<esred>CAD</esred><esred>图</esred>清晰的<esred>导入</esred><esred>Word</esred><esred>中</esred>?
    如何将CAD图清晰的导入Word中?

    浏览量:4002 室内设计

    溜溜自学
  • 怎么把<esred>CAD</esred><esred>图</esred><esred>导入</esred><esred>Word</esred><esred>中</esred>?
    怎么把CAD图导入Word中?

    浏览量:1432 室内设计

    溜溜自学
  • <esred>如何</esred>把<esred>CAD</esred><esred>图</esred><esred>导入</esred><esred>Word</esred><esred>中</esred>?
    如何把CAD图导入Word中?

    浏览量:2147 室内设计

    溜溜自学
  • <esred>CAD</esred><esred>图</esred>怎么<esred>导入</esred><esred>Word</esred><esred>中</esred>?
    CAD图怎么导入Word中?

    浏览量:1037 室内设计

    溜溜自学
  • <esred>CAD</esred><esred>图</esred>怎样<esred>导入</esred><esred>Word</esred>文件?
    CAD图怎样导入Word文件?

    浏览量:766 室内设计

    溜溜自学
  • <esred>Word</esred><esred>中</esred>怎样<esred>导入</esred><esred>CAD</esred><esred>图</esred>?
    Word中怎样导入CAD图?

    浏览量:1322 室内设计

    溜溜自学
  • <esred>Word</esred><esred>中</esred>怎么裁剪<esred>CAD</esred><esred>图</esred>?
    Word中怎么裁剪CAD图?

    浏览量:2150 办公入门

    溜溜自学
  • <esred>CAD</esred><esred>图</esred>怎么才能<esred>导入</esred><esred>Word</esred>?
    CAD图怎么才能导入Word?

    浏览量:902 办公入门

    溜溜自学
  • <esred>Word</esred>文档<esred>如何</esred><esred>导入</esred><esred>CAD</esred><esred>图</esred>?
    Word文档如何导入CAD图?

    浏览量:2791 办公入门

    溜溜自学
  • <esred>CAD</esred><esred>图</esred>怎么<esred>导入</esred><esred>Word</esred>文件?
    CAD图怎么导入Word文件?

    浏览量:711 办公入门

    溜溜自学
  • <esred>CAD</esred><esred>图</esred>怎么<esred>导入</esred><esred>Word</esred>中使用?
    CAD图怎么导入Word中使用?

    浏览量:789 办公入门

    溜溜自学
  • <esred>CAD</esred><esred>图</esred><esred>如何</esred><esred>导入</esred><esred>Word</esred><esred>中</esred>?
    CAD图如何导入Word中?

    浏览量:995 办公入门

    溜溜自学
  • <esred>CAD</esred><esred>图</esred><esred>如何</esred><esred>导入</esred>Max<esred>中</esred>渲染?
    CAD图如何导入Max中渲染?

    浏览量:876 室内设计

    溜溜自学
  • <esred>CAD</esred><esred>图</esred>怎么<esred>导入</esred>到<esred>Word</esred>?
    CAD图怎么导入到Word?

    浏览量:549 办公入门

    溜溜自学
  • <esred>CAD</esred>文字<esred>如何</esred><esred>导入</esred><esred>Word</esred>?
    CAD文字如何导入Word?

    浏览量:1257 办公入门

    溜溜自学
  • 
  • 1
  • 2
  • 3
  • 4
  • 5
  • 6
  • ...
  • 2400
  • 2401
  • 
老师入驻 3Dmax学习专题 显示免费 邀好友得贵族

溜溜7周年红包已赠送给您,请在7月8日之前使用,逾期无效噢!

  • 300 充值满送

    下载币充下载币单笔满300元使用

    共2张2020.07.05 23.59到期

  • 300 开通VIP/贵族

    下载币开通VIP或4大贵族送下载币

    共2张2020.07.05 23.59到期

  • 50元 充值代金券

    充下载币单笔满500元使用

    共2张2020.07.05 23.59到期

  • 7.5折 课程折扣券

    购买溜溜自学网课程使用

    共2张2020.07.05 23.59到期

立即收下

  • 7.5折 课程折扣券

    购买溜溜自学网课程使用

    共2张2020.07.08 23:59到期

立即收下

讲师入驻 关于我们 联系我们 常见问题
  • 课程: 室内设计、 景观建筑、 平面设计、 工业产品、 视频制作、 CG动画、 高效办公、
  • 周边: 3D溜溜网、 溜溜商城、 溜云库、 羽兔网、 软件下载、
  • 标签: 室内设计、 建筑景观、 视频制作、 平面设计、 工业产品、 软件课程、 其他课程
客服QQ 800181760

周一至周五:9:00-21:00

周末及节日:9:00-18:00

官方Q群
    溜溜联盟
      官方微信群

      (微信添加“妙妙”或“笑笑”,邀您进群)

      • 笑笑MM

      • 妙妙MM

      3D溜溜网小程序

      随时随地找模型

      扫码关注,有惊喜~

      市场合作: QQ:20805692

      • 3D溜溜网

        每天更新设计案例,不同时尚,不同风格

      • 3D溜溜软件管家

        关注公众号,了解软件下载安装答疑

      • 3D溜溜服务号

        3D溜溜官网公众服务号,定期发布官网优惠信息,活动信息,产品上线信息

      查看全部>

      Copyright © 2010 - 2025 3d66.com All rights reserved.3D溜溜网-免费3d模型,3d模型库下载©版权所有 粤ICP备13075835号-3

      ╳

      立即领取